Avantgarde 126 F

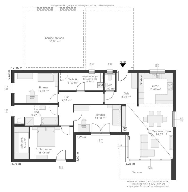
WER AUF REPRÄSENTATIVE DIMENSIONEN im Wohn- und Essbereich Wert legt und eine großzügige Wirkung seines Eigenheimes schätzt, wird Raumhöhen von bis zu 3,20 Metern als ausgesprochen angenehm empfinden. Privatbereich und Wohnbereich lassen sich bei diesem Haustyp deutlich voneinander trennen und durch die optionale Überdachung entsteht ein geschützter Terrassenbereich, der für kühlende Abschattung im Hochsommer sorgt.

Eckdaten

Kategorie

Traumhaus
Die Traumhäuser sind sowohl Vorlage als auch Inspirationsquelle für unser Kunden. Diese werden individuell auf die Bedürfnisse des Kunden abgestimmt.

Dachform und Fläche

Flachdach/Attika

151.77 m2 bebaute Fläche

125.70 m2 Nettogrundrissfläche
Flächenberechnung laut Ö-Norm B 1800, für Deutschland DIN 277

Was spricht für uns?

Informieren Sie sich über die Vorteile, die HARTL HAUS als Qualitätsführer im Fertighausbau auszeichnen!

Weitere Informationen

Grundrisse

Gefällt Ihnen, was Sie sehen?

Beratung vereinbaren
Jetzt Katalog anfordern

Weitere Planungsideen

Interaktive 3D-Ansicht

IHR INTERAKTIVER HAUS-SPAZIERGANG

Klicken Sie auf das Bild für die 3D-Ansicht.

Zum Navigieren verwenden Sie die eingeblendeten Schaltflächen oder ziehen mit der Maus.

Besonderheiten

SPEISEKAMMER

Extra viel Stauraum für Lebensmittel, etc.

BEGEHBARER KLEIDERSCHRANK

Grundriss kann mit Schrankraum realisiert werden.

IHRE VORTEILE

Im Innenbereich

  • lichtdurchfluteter Wohn- und Essbereich mit großer Eckverglasung
  • zwei gleich große Kinderzimmer
  • getrennter Privat- und Besucherbereich

Im Außenbereich

  • wind- und sichtgeschützter Terrassenbereich
  • Möglichkeit für eine vorgezogene Terrassenüberdachung

SERVICE & BERATUNG

Kontaktieren Sie uns! Wir freuen uns auf Sie.

Hr. Leuzinger +41 81 420 50 22

Fr. Geisseler +41 62 844 34 38