Eckdaten
Kategorie
Dachform und Fläche
m2 bebaute Fläche
87.65 m2 Erdgeschoss
68.30 m2 Obergeschoss
______________________________
m2 Nettogrundrissfläche
68.30 m2 Obergeschoss
______________________________
m2 Nettogrundrissfläche
Flächenberechnung laut Ö-Norm B 1800, für Deutschland DIN 277
Was spricht für uns?
Informieren Sie sich über die Vorteile, die HARTL HAUS als Qualitätsführer im Fertighausbau auszeichnen!
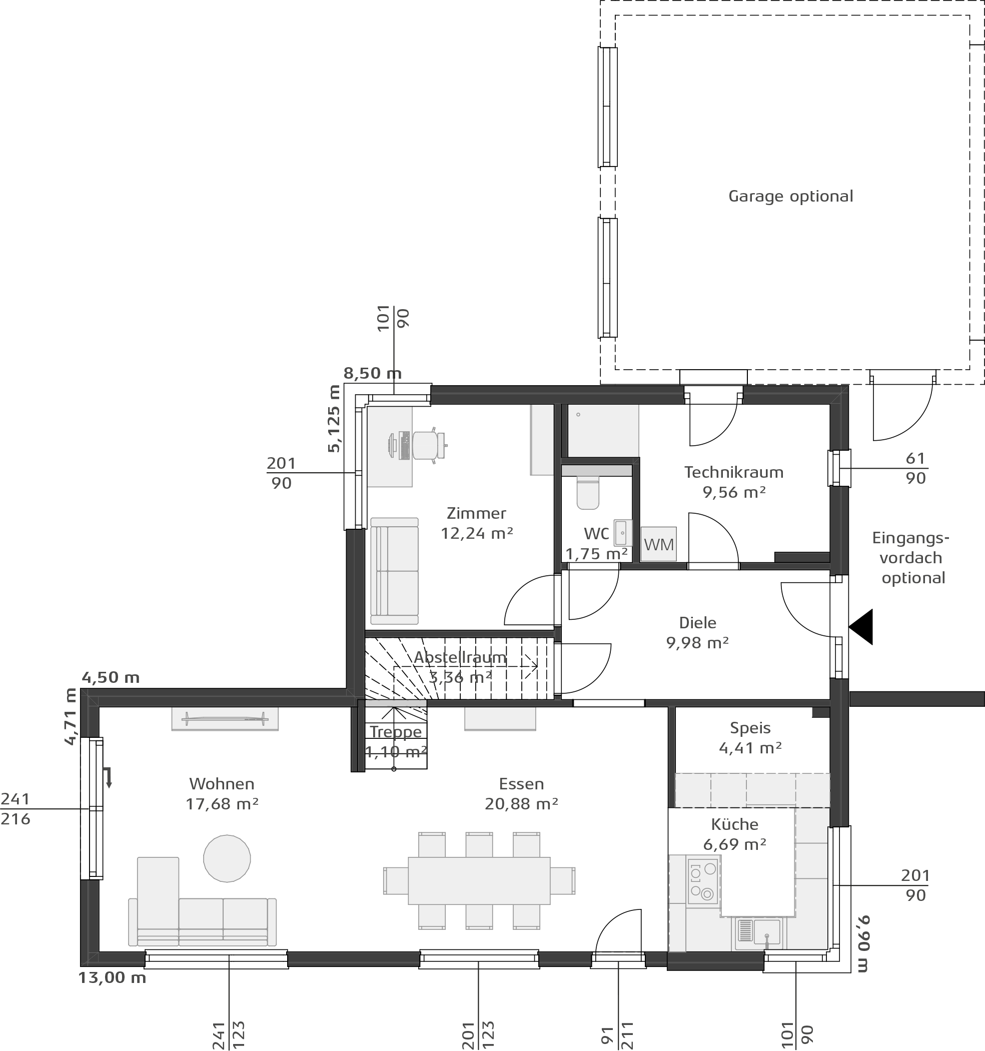
Grundrisse
Gefällt Ihnen, was Sie sehen?

Besonderheiten
Technikraum
Für Errichtung auf Bodenplatte geeignet
EXTRA ZIMMER IM EG
Flexibel nutzbar als Büro, Schlafraum etc.
Speis
Als Möbelspeis in die Küche integriert

IHRE VORTEILE
viele Gestaltungsvarianten
- optionale Garage und Vordach
- Grundrissänderungen möglich
- größere Variante mit 172 m² Wohnfläche
SERVICE & BERATUNG
Kontaktieren Sie uns! Wir freuen uns auf Sie.
Tel: +43 2849 8332-0