Studio 26 und Studio 52 - die Tiny Houses von HARTL HAUS
Studio, Mini-Büro, Appartement oder Garden Office – so vielfältig die Namen für kompaktes Wohnen, Leben und Arbeiten sind, so variantenreich ist HARTL HAUS auch in der Umsetzung Ihrer individuellen Vorstellungen.
Kompakt und durchdacht zeigt das Studio auf 26 Quadratmetern volle Größe. In bewährter HARTL HAUS Qualität kann das Studio auch als modularer Komplettraum inklusive Einrichtung vorgefertigt werden. Für Sie als Unternehmer ein großer Vorteil in der Umsetzung, da das Gebäude in einem Kranhub montiert werden kann und sich somit für Sie unter anderem steuerliche Vorteile ergeben.
Das Studio passt sich dank individueller Raumaufteilung Ihren Anforderungen an. Eine Kopplung bzw. Stapelung der Module ist auf Anfrage möglich. Auch eine Demontage und Wiederverwendung des Studios ist rasch und einfach machbar. Die Experten des HARTL HAUS Objektbauteams sind Ihre Ansprechpartner für Ihre Fragen.
- Lieferung und Projektumsetzung ausschließlich innerhalb Österreichs. -

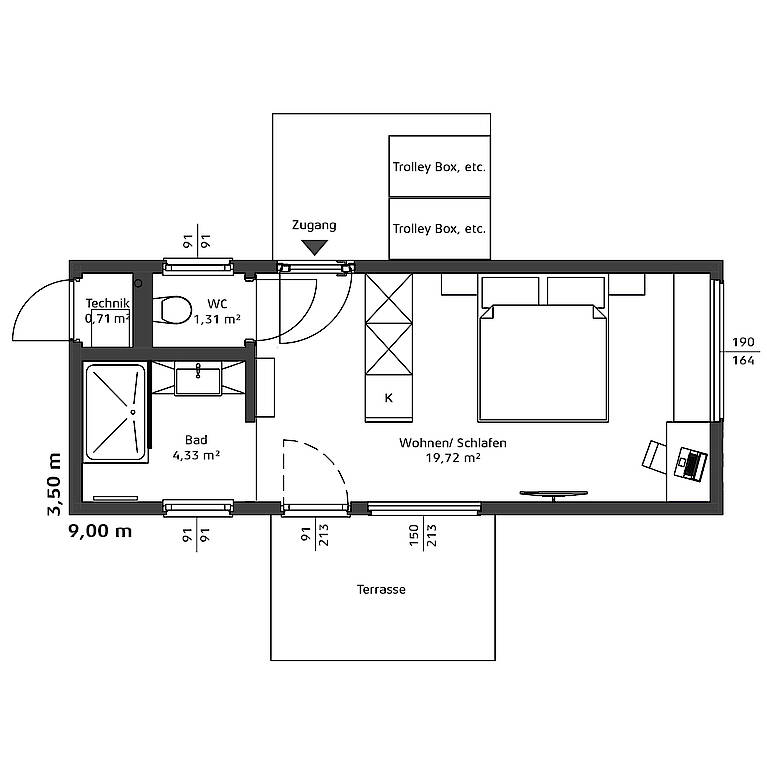
Studio 26
- Wohnen/Schlafen, Bad, WC
- 26,12 m² Nettogrundrissfläche
- 31,52 m² bebaute Fläche

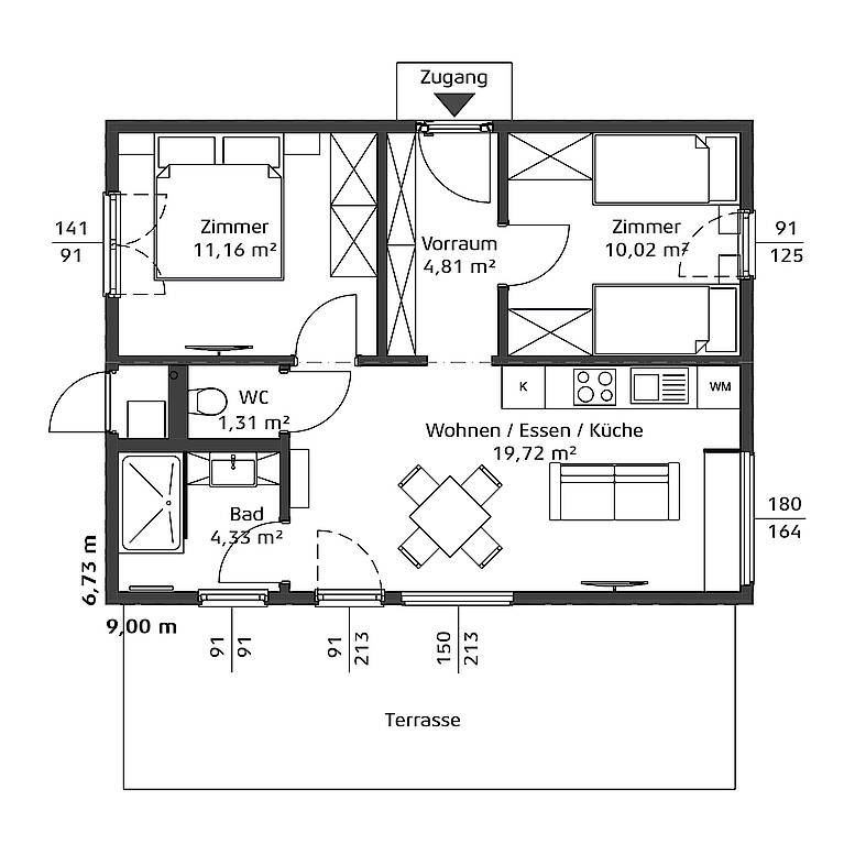
Studio 52
- Wohnen/Essen/Küche, Bad, WC, Vorraum und zwei zusätzliche Zimmer
- 52,06 m² Nettogrundrissfläche
- 60,58 m² bebaute Fläche

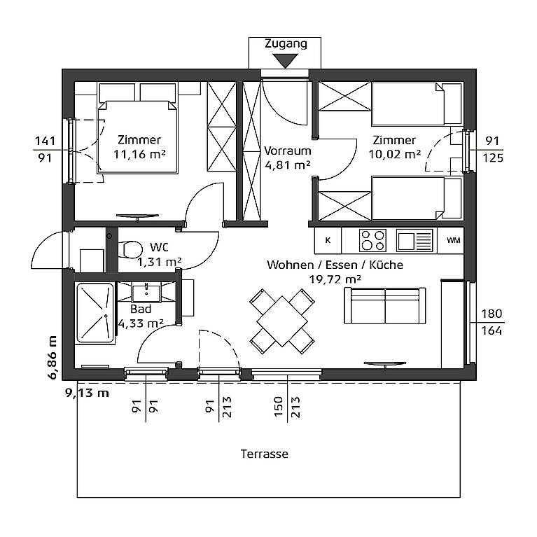
Studio 52 PLUS
- ganzjährig bewohnbar
- 52,06 m² Nettogrundrissfläche
- 62,63 m² bebaute Fläche
Service & Beratung
Weitere Informationen, Folder & Preisliste zu den Studios erhalten Sie direkt bei
Romana Kirchmayr
+43 2849 8332-246
projekt(at)hartlhaus.at